Double House
Los Angeles, Pending Construction 2024

elevational view on site
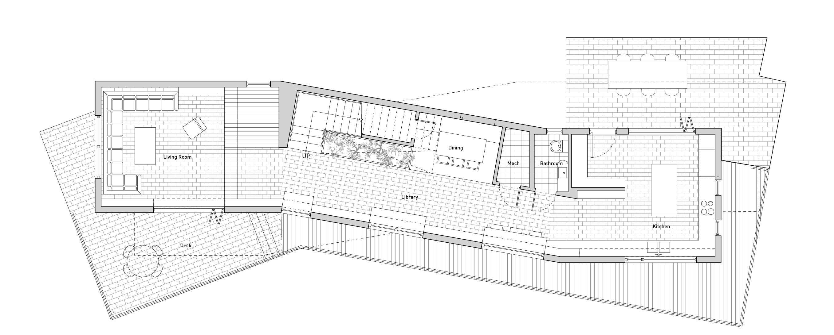
This single-family residence is situated on the ridge of an extremely steep hillside lot. The new home, technically an addition to the living quarter on site, is designed as a pair of stacked bars that shear to create overhangs at the entry and outdoor living area and terraces at each bedroom.

Expanding the undersized existing house, the new house extends the first story along the ridge in both directions and mirrors that plan profile at the second level.

The interior is organized around wide, multi-use corridors with built-in shelving, cabinetry, and seating carved out of the depth of the adjacent southern exterior wall.

Level 1

Level 2
The deep window volumes create a series of intimate spaces for a variety of uses: desks, window seats, a breakfast nook, and the kitchen counter

The vibrant color scheme shifts along the length of the house, alternating between warm and cold to accentuate the solid-void rhythm of the south wall


The exterior is finished with cementitious panels printed with a ‘noise’ pattern of square pixels scaled to evoke an immaterial digital effect rather than finishes like tile or siding panels.

These square pixels gradate in tone, shifting from darker earth tones at the ground level to a lighter and more sparse pattern towards the tree tops. As a result, the prominence of the house alternatively blends into and advances from the surrounding hillside based on lighting, time of day and vantage point.

Project Team: Luiza De Souza, Zane Mechem