The York
Highland Park, CA

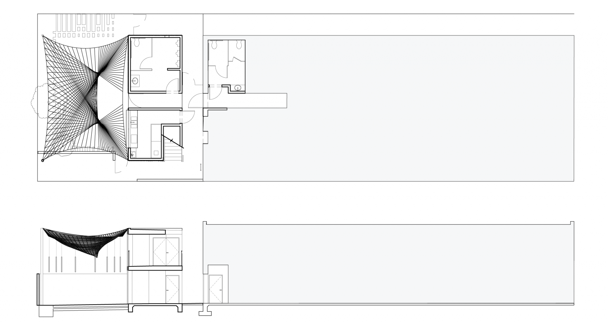
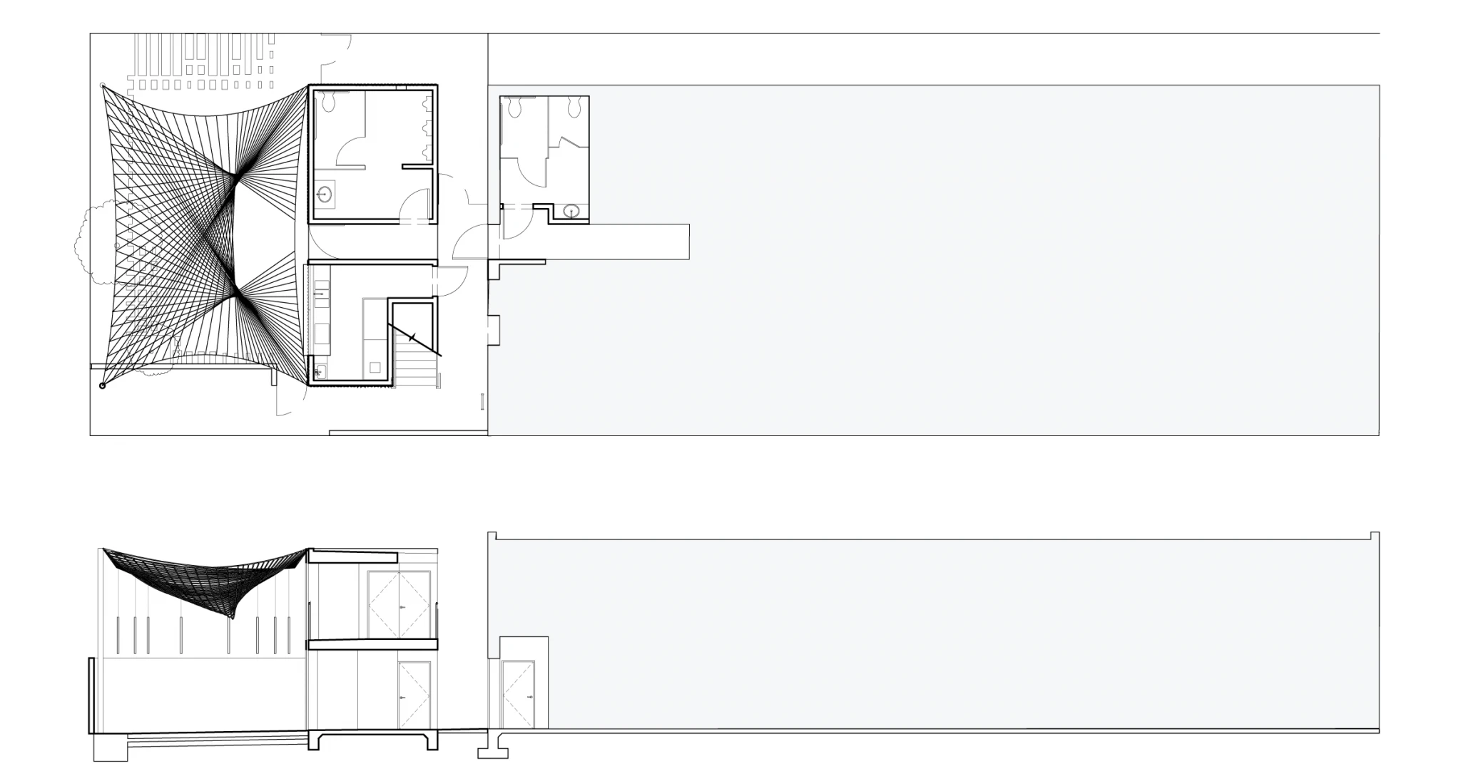
The residual and infrastructural character of this rear patio and restaurant addition was informed by the tangle of power lines that dominate the existing lot. Those infrastructural vectors are collected to produce a canopy of suspended steel cables that coalesce into an undulating ceiling surface over the new dining area.

Cable Canopy Variations

Plan & Section

With Ann Wright and Juan Lau