Maximiliano
Los Angeles, CA, Completed 2011 Restaurant Design Award Finalist, 2012

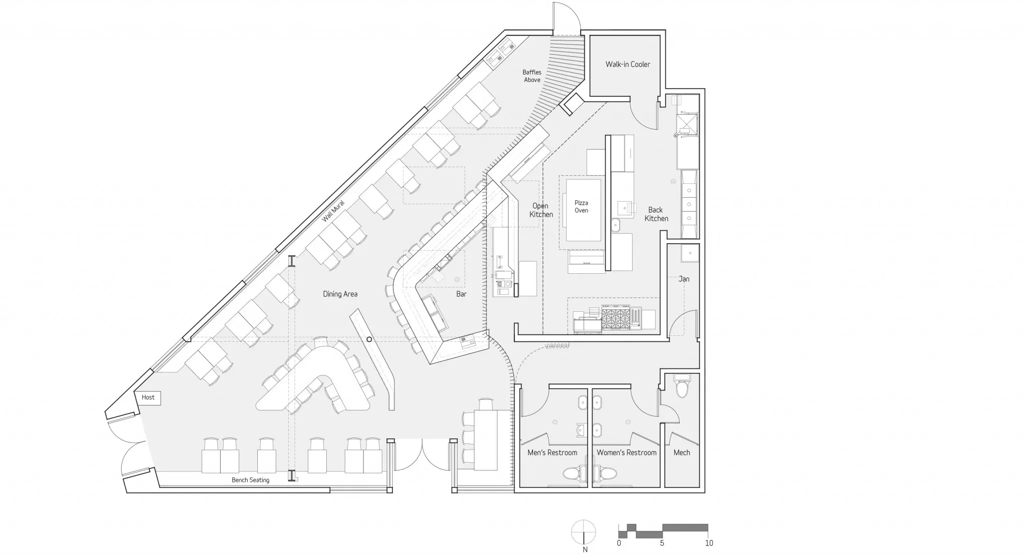
An Italian restaurant and pizzeria for chef Andre Guerrero, Maximiliano is a dynamic triangular space infused with color. A large mural on the large south wall creates a strong graphic and spatial identity. The rhythm of embossed white stripes shifts from evenly parallel at the ceiling to randomly wavy at the seats, giving a gravitational weight to the wall and emitting vibrant color and pattern.






The brightly painted slats animate the space with local and varied color intensities creating 3d optical effects as the viewer moves that recall the visual instability of 1970’s Op Art.

Soffit Elevations



Photos: Nils Timms
Project Team: David Freeland, Brennan Buck, Juan Lau